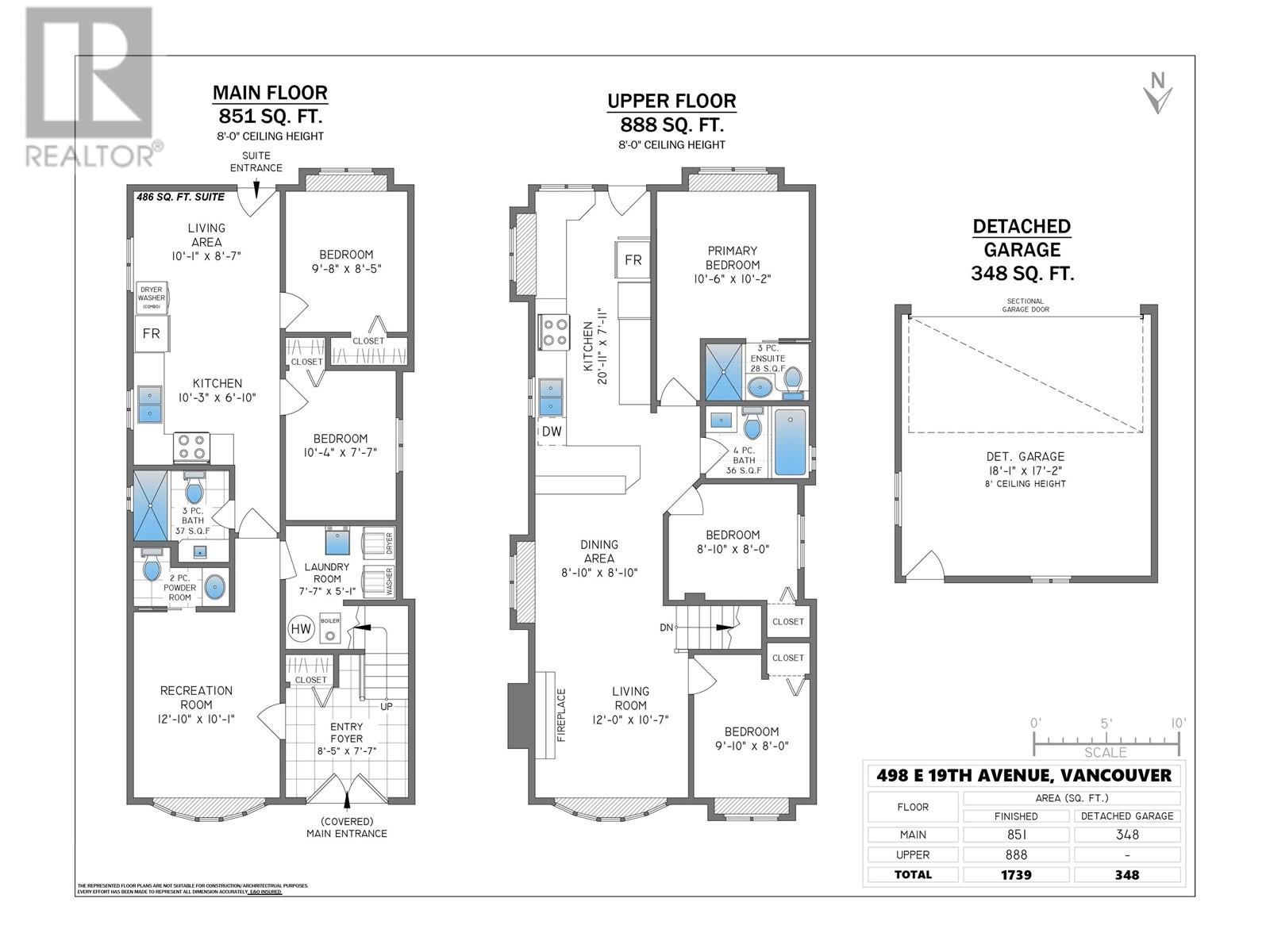
CORNER LOT! Very bright, spacious and renovated 5 bed, 4 bath family home in the popular Main/Fraser neighbourhood! Above features an open concept living/dining space w/gas fireplace, hardwood floors, skylights, an enormous kitchen w/tons of counter +cabinet space, ss appliances, stone counters, 3 bedrooms, primary with en-suite. Below features a rec room or bedroom, which can be for upstairs use, laundry, powder room +2 bed suite with laundry+separate entrance, perfect for mortgage helper income or for larger space for extended families. BONUS: Fully fenced south facing backyard with a detached double car garage. High rental income! Schools:Livingstone+Tupper. Walk to parks, transit, shops etc. Some photos are virtually staged.